Ціна теплоакумулятора Altep вказана з нижнім теплообмінником.
Буферна ємність для котла Altep - сучасний пристрій, що потрібен для зниження витрат палива системи опалення. Обсяг акумулюючої ємності доступний від 500 до 1500 літрів. Бак плоскої форми:
- захищає котел від перегріву;
- підвищує ККД всієї системи;
- дозволяє підключати додаткові джерела енергії.
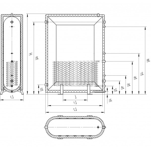
Дана модель буферної ємності для котла має нижній теплообмінник. Завдяки йому можливе підключення ще одного джерела тепла. Верхній теплообмінник призначається для нагріву води на потреби ГВП.
Теплоаккумулятор Altep оснащений утеплювачем (10 см), що допомагає утримувати тепло і збільшує ККД.
Переваги буферної ємності для котла Altep
✔ Зручна плоска форма підійде для невеликих котелень;
✔ Якість - сталь, товщина якої 5 мм;
✔ У наявності теплоізоляція і чохол від забруднень;
✔ Професійно виконані зварювальні шви;
✔ Буферна ємність для котла захищає його від перегріву і продовжує термін служби.
Доступне розташування патрубків на вибір 0°, 180° - при замовленні уточнюйте у менеджера.
Вертикальні буферні ємності для котла слід встановлювати тільки в приміщеннях з плюсовою температурою. Монтаж і запуск пристрою здійснюється фахівцями. В якості теплоносія застосовувати воду. Після першого запуску слід перевірити місця з'єднання на витік.
Характеристики плоских буферних ємностей Altep

L = 830; L1 = 1750; L2 = 555
H |
1915 | 1’’ |
h1 |
65 |
¾’’ |
h2 |
195 |
1’’ |
h3 |
225 |
1 ½’’ |
h4 |
315 |
1½’’ |
h5 |
445 |
½’’ |
h6 |
780 |
1’’ |
h7 | 970 | ½’’ |
h8 | 1605 | ½’’ |
h9 | 1715 | 1½’’ |
H - патрубок підключення группи безпеки;
h1 - патрубок для зливу теплоносія;
h5, h7, h8 - патрубки для виміру температури;
h3, h4, h9 - патрубки подавальних та зворотніх магістралей;
h2, h6 – патрубки підключення нижнього теплообмінника.
Купити буферну ємність для котла Альтеп з нижнім теплообмінником можно на складі в Харькові або замовивши з доставкою в будь-яке місто України на відділення Нової пошти.
Буферна ємність для котла Альтеп ТАП1н 1000 л
050-301-33-77
068-307-33-77
Немає відгуків про цей товар, станьте першим, залиште свій відгук.
- Делівері
- Передплата за рахунком-фактурою
- Оплата online (Visa/MasterCard)
- 100% оригінальний товар
- Повернення протягом 14 днів з моменту отримання товару
